咖啡馆装修设计案例,分享给有咖啡馆梦想的你

2022-08-30 责任编辑: 387
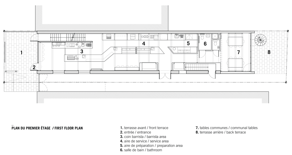
爱咖啡,让我们聚在一起。与阿啡分享咖啡乐趣,请加微信个人号:acoffee520,随时交流,乐在分享。这个案例的特点:原木、简约、现代。后面还有更精彩的照片。这是平面设计图,合理利用空间。其他咖啡馆店内外风格供参考。

加盟好项目推荐

品牌排行榜

月度关注榜

相关阅读

广州见!阿啡的咖啡主题摄影展- 号在广州咖啡博

08-30 503

咖啡师的终极武器-笑容!哈尔滨冠军杯国际选手

08-30 373

疯狂星巴克:全新概念咖啡体验馆颠覆你的印象

08-30 508

太残忍了!一起拒喝猫屎咖啡!

08-30 170

手冲咖啡教学视频:史上最实用最完整( 分钟)

08-30 459

格调很高的咖啡馆环境欣赏,不能去泡过过眼瘾也

08-30 48

热门品牌加盟

热门品牌口碑

蜜思蜜语 好街坊蛋糕 东丘咖啡机招商加盟 西摩兰咖啡招商加盟 罗纳咖啡招商加盟 广州猫屎咖啡加盟 INCHA印茶 怒鸟的茶铺 茶之恋珍珠奶茶 瑞源牛奶 咖啡弄甜品招商加盟 蜜雪冰城 美妍西饼 彦悦山 名典咖啡加盟 茶颜茶语 爱诺食尚蛋糕 榴莲一品 coffee story咖啡剧 百味密码冻酸奶
咖啡馆装修设计案例,分享给有咖啡馆梦想的你 广州见!阿啡的咖啡主题摄影展- 号在广州咖啡博览会现场展出 咖啡师的终极武器-笑容!哈尔滨冠军杯国际选手比赛特写! 疯狂星巴克:全新概念咖啡体验馆颠覆你的印象 太残忍了!一起拒喝猫屎咖啡! 手冲咖啡教学视频:史上最实用最完整( 分钟),值得学习和分享! 格调很高的咖啡馆环境欣赏,不能去泡过过眼瘾也值! 分钟学会品咖啡,看完涨知识! 美食摆盘的艺术,看完就醉了。。。 最受欢迎美食纪录片《食品工厂》全集,从介绍好咖啡开始美食之旅 早餐第一口吃什么最健康? 【世界上最大】咖啡香扑鼻的壁画 年亚洲十佳餐厅出炉,曼谷摘冠上海第三 就想在街角开家暖暖的咖啡馆:此文已点燃了无数人的梦想。。。 开店必备:咖啡馆完整品牌视觉,不放过任一个细节! 成功开店经验分享:墨尔本咖啡飘香的秘密 世界十大顶级咖啡产国,玩咖啡从认识这开始! 我与冠军零距离:GCEF咖啡论坛图文传真,附咖啡馆经营干货 咖啡是他们的大众情人:漫话法国咖啡风情 德国人的厨房,看完都醉了

热门品牌排行榜

查看更多品牌